3235 Roswell Road NE, Unit 400
Atlanta , Georgia 30305
- Listing Type:
- For Lease
- Listing Price:
- $50.00
- Property Type:
- Office
- Property Subtype:
- Creative/Loft
- Year Built:
- 1999
- Listing Status:
- Active
- Building Size:
- 100000 SqFt
Description:
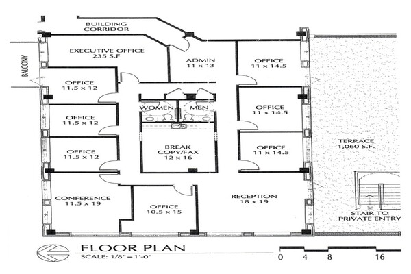
+/-2,930 square foot Very Unique Office Condominium. This is the ONLY commercial unit in the Buckhead Village Lofts development. Property features loft-style office finishes, high ceilings, exposed ductworks, upgraded track lighting, ceiling fans and huge "Architectural" windows throughout; private offices (8) circle the perimeter of the space (all with windows); open spacious reception area leads to large corner Conference Room and interior central break/work area.
Private, secure front door entrance off surface free visitor parking lot
(10) Secure, covered and reserved parking and entrance for employees
Private restrooms (2), closet storage, open workstation area
Private exterior terrace patio space (+/- 1,200 sq. ft.)
Access to on-site amenities (Pool, Fitness Center)
"Walk Score" rated 80 - restaurants, entertainment, public transit, grocery
On-site, 24/7 Concierge service
Recently renovated to upscale "MedSpa" finishes with furniture available
Immediate occupancy potential
Suitable for medical office, high-tech, or professional office uses
***SHOWINGS BY PRIOR APPOINTMENT ONLY***
Presented by:
Listed by:
Atlanta - Peachtree Road
KW Commercial Peachtree Road
Mortgage Calculator
INPUTS
