Back to Listings
4427 Carnes St
Acworth , Georgia 30101
- Listing Type:
- For Lease
- Listing Price:
- $0.00
- Property Type:
- Office
- Property Subtype:
- Office Building
- Year Built:
- 1975
- Listing Status:
- Active
- Building Size:
- 8052 SqFt
- Land Area:
- 0.58 Acres
Description:
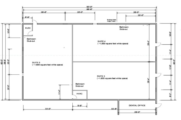
Professional Office Space Available
Newly Renovated Exterior
Build to Suit Opportunities (roughed in interior)
5,000 Total SF available
Can be subdivided into 3 suites (two 1,600 SF suites and one 1,800 SF suite)
Ample Parking
Walkable to downtown shopping and dining
Great professional office opportunity
Medical, Healthcare, CPA, Attorney, etc.
Presented by:
Listed by:
Keller Williams Realty Atlanta North
Atlanta - East Cobb
Mortgage Calculator
INPUTS
