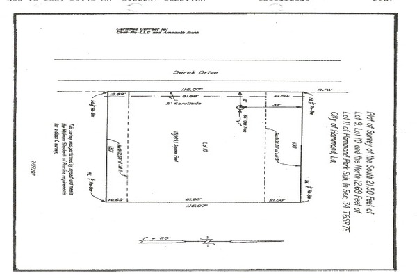
1305 Derek Dr
Hammond , Louisiana 70403
- Listing Type:
- For Lease
- Listing Price:
- $16.00
- Property Type:
- Office
- Property Subtype:
- Office Building
- Year Built:
- 2008
- Listing Status:
- Active
- Building Size:
- 8800 SqFt
- Land Area:
- 0.69 Acres
Description:
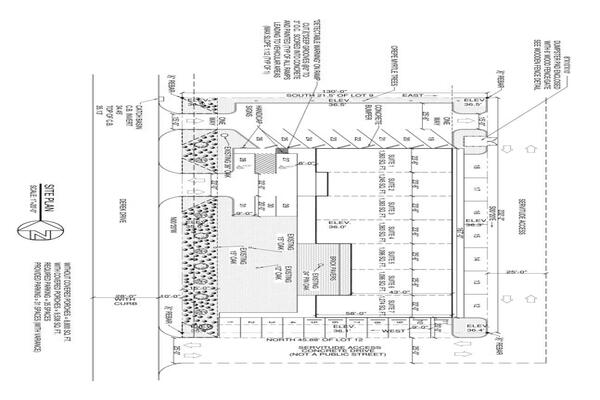
				Impressive office property with brick construction, copper awnings, and high ceilings - 2726 SF of general office or medical space available. Plenty of parking and convenient access to I-12 or I-55, just off Morrison. Located in area of medical/office complexes across from Landmark Nursing Care. Suites 3 and 4 are combined and include a large open office area, kitchen, and two ADA baths. $3180/month + $682 NNN fees = $3862 total. 3-year minimum term. 	
2726 SF Available
Built in 2008
Quality all-brick construction with copper awnings, courtyard fountain
Easy access from I-55 and I-12
3-year minimum NNN lease, buildout available			
Presented by:
 
					
										
										
					
					
					Listed by:
Keller Williams Realty Services
Mandeville
Mortgage Calculator
INPUTS

 
							  
							  
							  
							  
							  
							  
							  
							  
							  
							  
							  
													