4264 Wittier Street
San Diego , California 92107
- Listing Type:
- For Sale
- Listing Price:
- $0.00
- Property Type:
- Land
- Property Subtype:
- Multifamily
- Year Built:
- Listing Status:
- Active
- Building Size:
- 10007 SqFt
- Land Area:
- 0.22 Acres
Description:
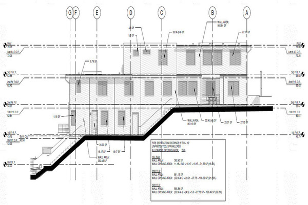
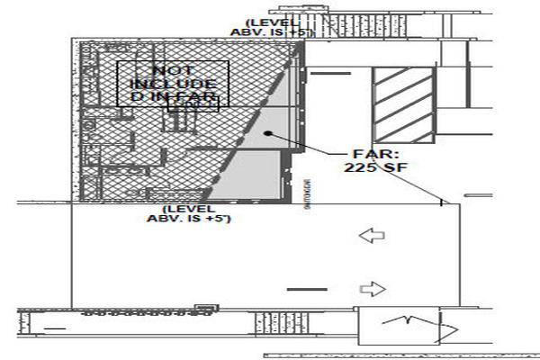
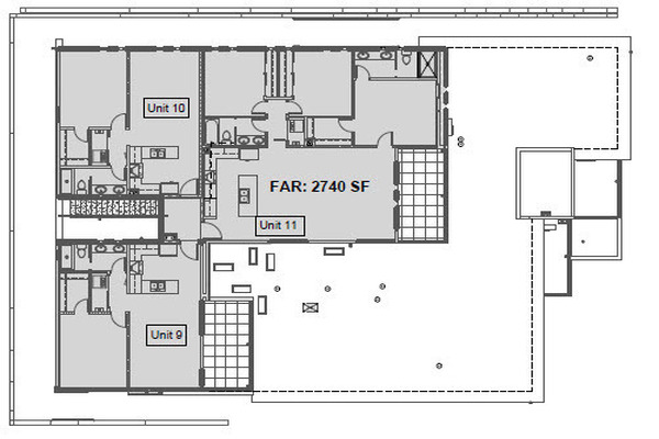
Shovel ready site with approved plans for an 11 unit multifamily project. The site is zoned RM 2-5 (1 du per 1,500sf) however, an affordable housing density bonus has been granted allowing for 10 market rate units and 1 affordable unit. The plans are fully approved and permits have been pulled. PLANS AVAILABLE UPON REQUEST
Diverse floor plans with units ranging in size from 625sf to 1,350sf
High demand rental market
Located along a private cul-de-sac in Point Loma Heights in between Ocean Beach, Mission Bay, and San Diego Bay
Convenient access to the 8 and 5 Freeways
Close proximity to beaches as well as several city parks and open spaces
Presented by:
Listed by:
Keller Williams Realty Carmel Valley
Carmel Valley / Del Mar
Mortgage Calculator
INPUTS
