640 Box Elder Rd
Box Elder , South Dakota 57719
- Listing Type:
- For Lease
- Listing Price:
- $3.30
- Property Type:
- Industrial
- Property Subtype:
- Warehouse/Distribution
- Year Built:
- Listing Status:
- Active
- Building Size:
- 17328 SqFt
Description:
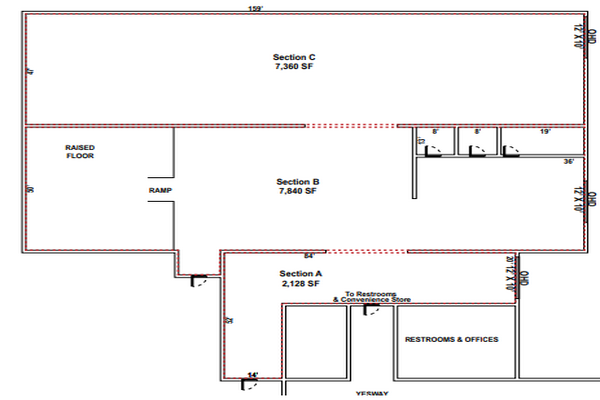
17,000 SF WAREHOUSE right off of I-90! On the back side of the Yesway Convenience Store at the intersection of Box Elder Rd and West Gate Rd, the warehouse is divided into three sections: Section A - 2,128 SF, 16' ceiling height, walk-in front entrance, and 12x10 overhead door - perfect for retail component or customer service area; Section B - 50' x 159', 12' ceiling height, 12x10 overhead door, two offices and storage room, separate front entrance, raised floor on the west end; Section C - 49' x 159' of clear span cold storage space, 12' ceiling height, 12x10 overhead door. Leases at $3.30/SF/YR plus $1.50 NNN & utilities totalling $6,932 per month. Tenant is responsible for any increase in taxes and insurance over the base year of 2020.
Presented by:
 
					
										
										
										
					
					
					Listed by:
Keller Williams Realty Black Hills
Keller Williams Realty Black Hills
Mortgage Calculator
INPUTS

 
							  
							  
							  
							  
							  
							  
							  
							  
													 
							