4711 S Interstate 90 Service Road
Rapid City , South Dakota 57701
- Listing Type:
- For Sale
- Listing Price:
- $2,995,000.00
- Property Type:
- Industrial
- Property Subtype:
- Warehouse/Distribution
- Year Built:
- 1976
- Listing Status:
- Active
- Building Size:
- 26024 SqFt
- Land Area:
- 2.46 Acres
Description:
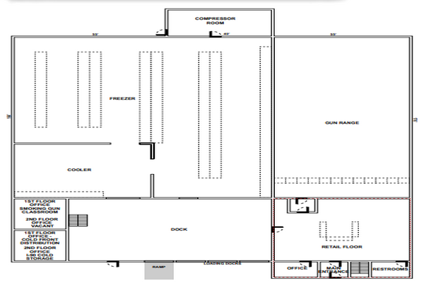
Two profitable businesses with fantastic exposure and frontage on the south side of I-90. I-90 Cold Storage (17,000 SF) is a simple, profitable operation with contracts in place for truck and trailer parking, cross-docking, freezer and cooler storage. Currently servicing 5 food service distributors year round, as well as a contract for ice storage from April through July for the rally. Freezer/cooler is 50-100% occupied throughout the year - 100% occupied for 4-5 months of the year, significant growth opportunity with addition of year-round tenants. Smoking Gun (9,000 SF) is a state-of-the-art shooting range and training center offering twelve 30-yard shooting lanes with high-tech consoles, memberships, classes, gun and ammunition sales. Capacity for handgun and rifle practice. Open 7 days a week, 2 full-time and 6 part-time employees, $150,000 in inventory, and currently 225 members.
Presented by:
 
					
										
										
										
					
					
					Listed by:
Keller Williams Realty Black Hills
Keller Williams Realty Black Hills
Mortgage Calculator
INPUTS

 
							  
							  
							  
							  
							  
							  
							  
							  
							  
							  
							  
							  
							  
							  
							  
							  
							  
													 
							