16365 Boones Ferry Rd
Lake Oswego , Oregon 97035
- Listing Type:
- For Lease
- Listing Price:
- $30.00
- Property Type:
- Office
- Property Subtype:
- Office Building
- Year Built:
- 1980
- Listing Status:
- Active
- Building Size:
- 3171 SqFt
- Land Area:
- 0.50 Acres
Description:
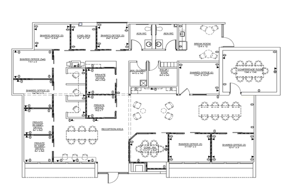
Built in 1980, the former bank underwent significant adaptive reuse improvements to convert to a luxury real estate office in 2016. These quality improvements include gorgeous modern rustic interiors and finishes. The space is currently fully furnished and move-in ready. It is a single level office building available for sublease with ample at grade parking stalls. The 12 private offices range from 60 SF to 120 SF and feature chic rolling barn doors. Also included are 3 semi-private workstations, 2 individual bathrooms, 2 conference rooms, an open concept work area, a kitchen, storage and server rooms, and a front reception area. Additional amenities are a brand-new commercial color printer, coffee bar, collaborative work tables and individual key fobs entry system for building security.
Fully furnished office space that is move-in ready
Excellent walk, bike and transit scores!
Current tenant willing to do "shared office" arrangement (like executive suites, available on a per room rental basis)
Presented by:
Listed by:
KW Portland Premiere
Portland Premiere
Mortgage Calculator
INPUTS
